Дерев’яні храми під ключ Закарпат Зруб-Буд180 $
Текст оголошення
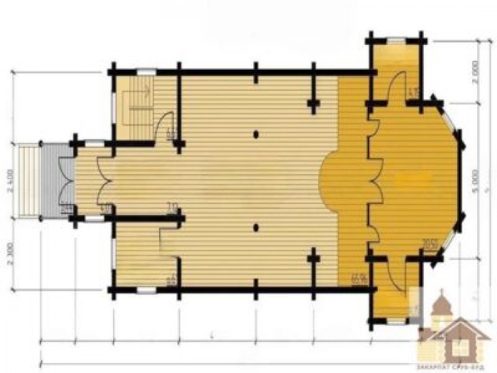
Дерев'яні храми під ключ від Закарпат Зруб-Буд поєднують традиційний зруб із сучасним дизайном. Проекти дерев’яних храмів, будівництво церкви з дерева та дерев’яний храм ЗСБ-138 м² з оциліндрованого бруса та золотими куполами. Дізнайтеся ціну, замовляйте проекти та створюйте свій унікальний дерев’яний храм, що зберігає традиції та надихає.
Контактна особа
Zakarpat Srub-Bud
067xxxxxxxxПоказати
Деталі оголошення
Оголошення №11036
23 листопада 2025, 08:16
33 перегляди
Скарга
- Wikimedus.com: усі зареєстровані ліки України — безкоштовно
- Діагностика та ремонт АКПП Nissan Murano JF011 Jf015 JF016 CVT 310203400 грн.
- Універсальна холодильна камера для продуктів -10С+10С, морозилка
- Діагностика та ремонт варіаторних КПП Nissan Altima RE0F10D CVT JF01 400 грн.
- Діагностика та ремонт Ford Fusion Hybrid DG9Z7005C, ECVT400 грн.
Контактна особа
Zakarpat Srub-Bud
067xxxxxxxxПоказати
Деталі оголошення
Оголошення №11036
23 листопада 2025, 08:16
33 перегляди